Komárno chce v novembri odovzdať do užívania 16 nových nájomných bytov
V Komárne pribudne ešte v tomto roku 16 nových nájomných bytov. Vzniknú prestavbou bývalej budovy okresného úradu na Námestí Štefánika. Predpokladaný termín ich odovzdania do užívania je november tohto roka, informovala radnica.
Mestské zastupiteľstvo v Komárne uzneseniami schválilo podmienky ich prenajímania a výšku nájomného. Záujemcovia o prenájom mestského bytu môžu doručiť svoje žiadosti na Mestský úrad Komárno do 15. augusta, upozornil magistrát.
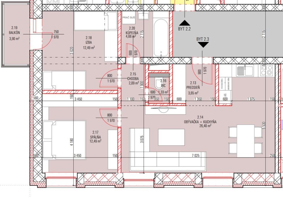
Rozloha dvoj- a trojizbových nájomných bytov bežného štandardu sa bude pohybovať od 50 do 75 štvorcových metrov. Určené budú pre mladé rodiny. Za budovou bude k dispozícii 22 nových parkovacích miest. Pri príprave teplej vody bude pomáhať osem solárnych kolektorov, čo by sa malo prejaviť na znížení režijných nákladov.



Náklady na prestavbu vo výške 1,15 milióna eur budú hradené zo štátnej dotácie a z úveru zo Štátneho fondu rozvoja bývania, informoval magistrát počas spustenia prestavby objektu.
Viac info: https://komarno.sk/ako-vybavit/





